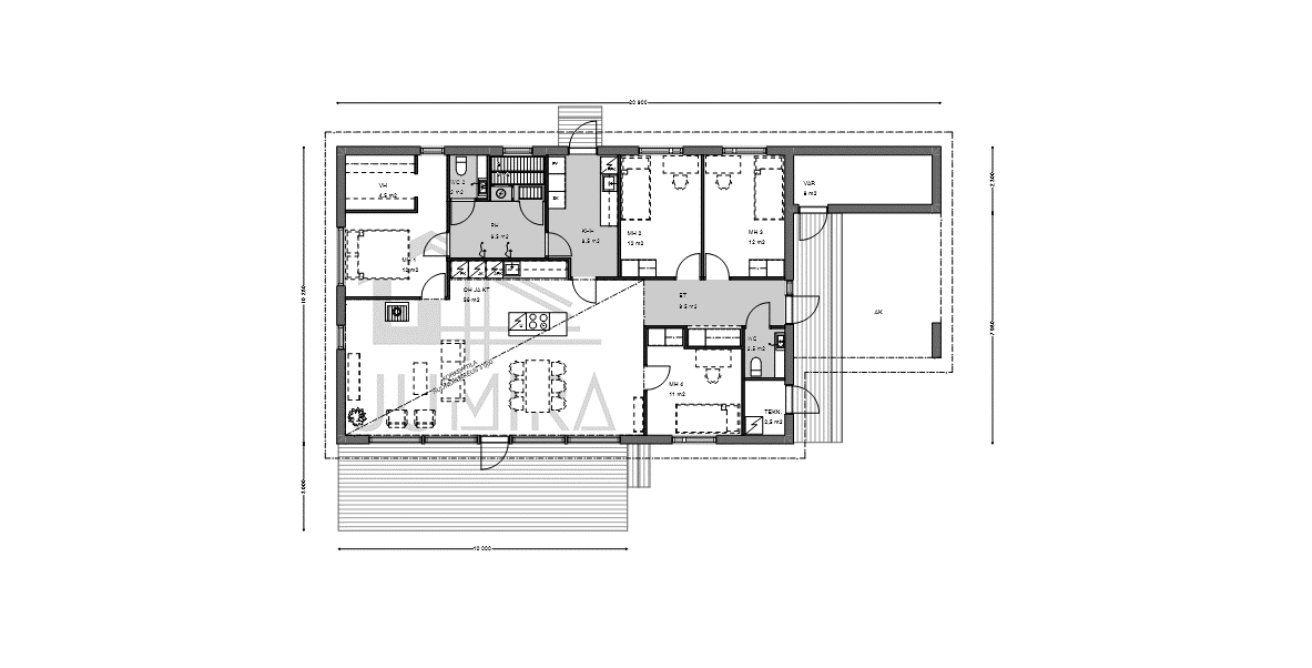
Korkealla olohuone- ja ruokailutilalla varustettu neljän makuuhuoneen koti autokatoksella
Tämän kodin ominaispiirteenä on linjakkaan näyttävä pulpettikatto, joka yhdistää autokatoksen asuinrakennukseen. Katoksen yhteyteen suunniteltu varasto tuo runsaasti lisätilaa säilytykseen. Sisääntuloterassi yhdistää pääsisäänkäynnin sekä sisäänkäynnit tekniseen tilaan ja varastoon. Pääsisäänkäyntiä on korostettu eteiseen luonnonvaloa tuovalla levikeikkunalla.
Näyttävät portaat johdattavat kulkijan sisään eteiseen, josta päästään valoisaan olohuone- ja ruokailutilaan. Korkea huonetila varustettuna isoilla ikkunoilla muodostaa tyylikkään kokonaisuuden, jonka viimeistelyn tuovat upotetut keittiön kaapit. Upotettuja kaappeja löytyy lisäksi eteisestä ja yhdestä makuuhuoneesta. Kolme muuta makuuhuonetta ovat väljän mitoituksen ansiosta tilavia.
Asunnon päämakuuhuoneessa on tilava walk in -tyylinen vaatehuone, johon mahtuu niin hylly- kuin tankotilaa. Suora kulku pesu- ja kodinhoitotiloihin tarjoaa mahdollisuuden sujuvaan pyykkihuoltoon. Kodinhoitohuoneesta pääsee peseytymisen ja saunomisen yhteydessä vilvoittelemaan takapihan puolelle.
