Avara koti, jossa viimeisteltyä ilmettä tuovat makuuhuoneiden sekä keittiön ja kodinhoitohuoneen upotetut kaapistot
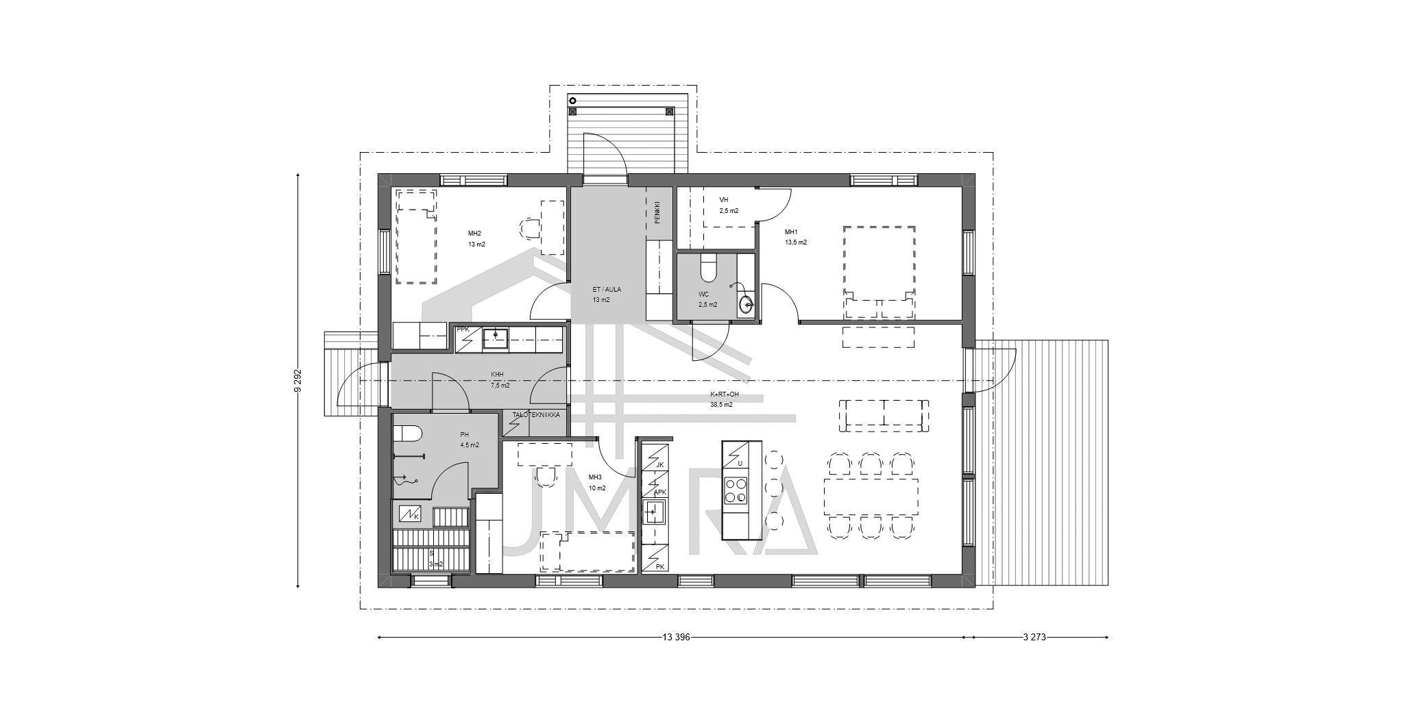
Talon sisään astuessa eteen avautuu tilava eteinen, josta löytyy kaappitilan lisäksi vapaata tilaa esimerkiksi kenkätelineelle tai naulakolle. Myös makuuhuoneet ovat tilavat ja päämakuuhuone on varustettu omalla vaatehuoneella.
Saarekekeittiö tarjoaa runsaasti työtilaa ja keittiöön mahtuu monta ruokailijaa. Ruokailua voidaan lämpimällä säällä jatkaa luontevasti viereisen terassin puolelle.
Upotetut kaapit niin makuuhuoneissa kuin kodinhoitohuoneessakin viimeistelevät asunnon tyylikkään yleisilmeen.
Pesuhuoneeseen voidaan lisätä toinen suihku tai pesuallas asukkaiden tarpeiden mukaan ja pohjaratkaisua voidaan muutoin muokata yhdessä suunnittelijoidemme kanssa. Kodinhoitohuoneeseen liitetty sivuterassi mahdollistaa vaivattoman pääsyn ulos vilvoittelemaan saunan jälkeen.
