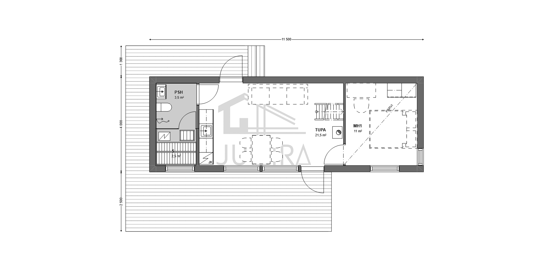
Tästä minitalosta löytyy kaikki asumisen ja viihtymisen edellytykset: Minitalosta löytyy peseytymistilat ja sauna sekä oleskelutila korkeana tilana. Lisäksi yöpyminen onnistuu makuuhuoneessa tai parvella.