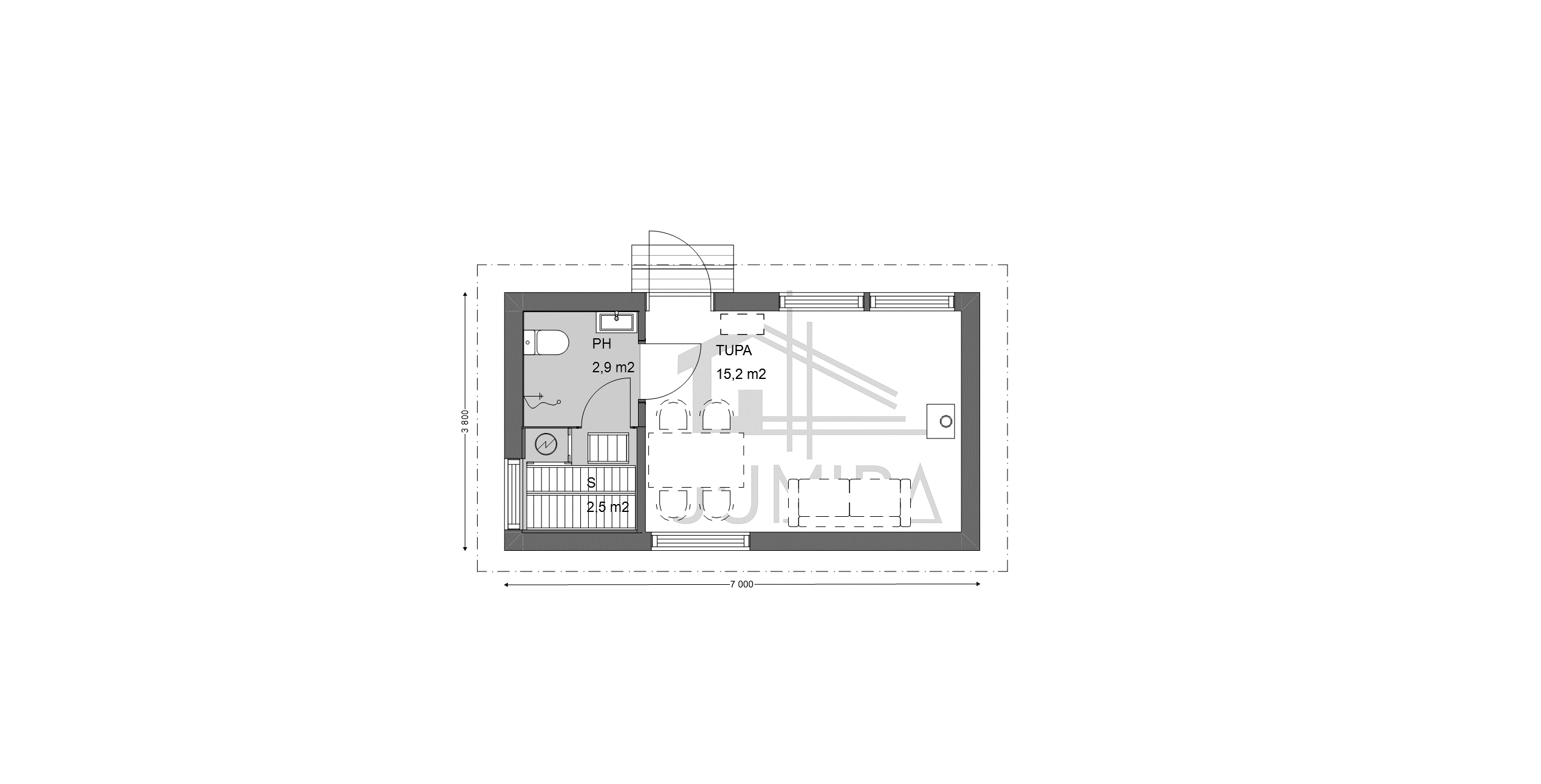
Jumira mini 25

  • Ph + sauna + tupa
  • Kerrosala 24,5
  • Huoneistoala 20,0

Tämän minitalon avulla saadaan helposti lisätilaa pieneksi jääneeseen asuinrakennukseen. Minitalo on myös hyvä lisä mökkitontille. Rakennuslupaa ei tarvita, sillä kerrosala jää alle 30 m². Kokonaisuuden voi valita isommalla tai pienemmällä terassilla riippuen tontista ja minitalon käyttötarkoituksesta.

Tähän minitaloon kuuluu pesuhuone wc-istuimella, altaalla ja suihkulla sekä sauna. Pesutilojen lisäksi minitalossa on tupa, johon tulisija tuo lämpöä ja tunnelmaa.